Mobile QR Code QR CODE
Export citation EndNote




플랫플레이트, 고인성 시멘트복합체, 비정질 강섬유, 강섬유 콘크리트, 스터드
flat plate, engineered cementitious composite, amorphous steel fiber, steel fiber concrete, stud

  • 1. 서 론

  • 2. 유기섬유와 강섬유를 혼입한 고인성 ECC적용3)

  •   2.1 ECC배합 실험 설계

  •   2.2 ECC 기초물성 평가 결과

  • 3. 플랫플레이트 구조의 접합부 구조성능 실험

  •   3.1 재료의 특성

  •   3.2 실험계획

  •   3.2.1 실험체 설계 및 제작

  •   3.2.2 실험변수 및 스트레인게이지 부착위치

  •   3.2.3 실험방법

  •   3.3 실험 결과

  •   3.3.1 균열 및 파괴양상

  •   3.3.2 하중-변위 및 하중-스트레인 관계

  • 4. 결 론

1. 서    론

플랫플레이트 구조는 보 없이 슬래브를 직접 기둥에 지지하는 2방향 슬래브 구조로서, 이 구조의 이점은 보가 없으므로 건물의 층고를 저감할 수 있고, 거푸집 및 철근공사가 간편하며 설비시설의 배치가 용이하다. 또한, 슬래브가 두꺼워지므로 차음성과 내화성이 우수하여 건물의 설계, 설비, 시공 등의 면에서도 대단히 유리한 공법의 하나이다. 그러나 플랫플레이트 구조는 슬래브-기둥 접합부의 접합 면적이 작기 때문에 기둥에서 전달되는 축하중의 국부적인 응력집중에 의한 뚫림전단파괴와 지진과 같은 수평하중이 작용할 때 접합부에서 응력집중에 따른 취성적인 전단파괴가 발생하기 쉽다는 약점을 갖고 있다. 특히 초고층 철근콘크리트 건물이 지진하중을 받을 때 각각의 부재 보다 슬래브-기둥 접합부의 응력부담이 높다는 것은 국내외의 실험연구1,2) 및 지진사례에서도 밝혀진 바 있다. 그러므로 플랫플레이트 구조의 슬래브-기둥 접합부는 축하중에 의한 뚫림전단에 대한 저항성과 지진 발생 시 건물전체 수평변형에 추종할 수 있는 연성능력을 확보하여야 한다.

이 연구에서는 플랫플레이트 구조시스템의 접합부 연성을 향상시키기 위하여 첫째로 고인성 시멘트 복합재(ECC)를 접합부 뚫림전단 위험 단면내에 타설하였다. 특히 본 연구에서는 ECC제조를 위한 다양한 섬유의 사용방법을 제시하고자 PVA섬유뿐 아니라 일반 강섬유의 단점을 개선한 비정질강섬유도 활용하였다. 뚫림전단 위험단면 내에 ECC를 사용함과 동시에 인접 전단보강 부위에 강섬유 콘크리트와 스터드를 함께 적용하는 상세를 개발하였으며, 이를 적용한 실험체에 대해 슬래브-기둥 접합부의 전단성능 실험을 수행하였다. 실험변수는 ECC에 혼입한 섬유 종류, 전단보강 구역의 스터드 설치와 강섬유 콘크리트 타설 여부였으며, 실험체의 파괴양상, 접합부 내력 및 변위와 변형률을 비교분석하였다.

2. 유기섬유와 강섬유를 혼입한 고인성 ECC적용3)

2.1 ECC배합 실험 설계

플렛 플레이트 적용을 위한 ECC의 배합 설계를 목적으로 일반적으로 ECC 제조시 사용되는 PVA섬유 대신 비정질강섬유를 사용한 경우에 대해 성능평가를 진행하여 ECC 제조를 위한 다양한 섬유 사용 방법을 제시하고자 하였으며, 실험계획을 Table 1에, ECC 기준 배합을 Table 2에 나타내었다.

Table 1 Experimental plan

/Resources/kci/JKCI.2017.29.2.209/images/Table_CONCRETE_29_02_09_T1.jpg

Table 2 Mix proportion on basic ECC

/Resources/kci/JKCI.2017.29.2.209/images/Table_CONCRETE_29_02_09_T2.jpg

* HPMC: hydroxy-propyl-methyl-cellulose

* PCSP: poly-carboxylate super-plasticizer

사용 섬유의 형상을 Fig. 1에, 사용한 섬유의 재료 특성을 Table 3에 나타내었으며, 사용된 섬유는 일반적으로 사용되고 있는 PVA와 강섬유의 일종으로 비정질강섬유를 사용하였다.

Fig. 1

Fiber types

/Resources/kci/JKCI.2017.29.2.209/images/Figure_CONCRETE_29_02_09_F1.jpg

Table 3 Properties of Fiber

/Resources/kci/JKCI.2017.29.2.209/images/Table_CONCRETE_29_02_09_T3.jpg

비정질강섬유는 용융로에서 녹인 철을 급냉각하는 과정에서 생산되는 비정질철을 박판 형태의 섬유로 제조한 것으로서 일반 강섬유에 비해서는 고인성이며, 사용된 섬유의 길이는 15mm에서 60mm의 것을 사용하였다. 섬유의 사용 방법은 각각의 섬유 단독으로 사용량을 변화시켜 적용하였으며, PVA와 ASF를 혼합 사용하는 경우에 대해서도 성능 평가를 진행하였다.

ECC의 기초물성 평가 항목으로서는 시공성을 고려하여 Flow 시험을 진행하였는데, 목표 Flow를 500±100mm를 설정하여 섬유 종류 및 사용량에 따른 목표 Flow 범위를 만족시키는 감수제의 사용량의 변화를 검토하였다. 강도 발현 특성은 압축강도와 인장강도, 휨강도를 각각 측정하였다.

2.2 ECC 기초물성 평가 결과

Fig. 2에 PVA 및 ASF 단독 사용 시 섬유량에 따른 유동성 및 압축강도 발현특성을 나타내었다. ASF를 사용할 경우 사용량이 증가할수록 유동성 및 성형성이 저하하는 경향이 나타나고 있으며, 특히 ASF 2.0 배합은 감수제 사용량을 증가시켜도 목표 Flow를 만족시키지 못하고 재료분리가 발생하는 것으로 나타났다. 이는 ASF의 형상비가 불규칙적이고 판상의 형태를 하고 있어서 ECC의 유동성 측면에서는 성능을 저해시키는 요인이 되는 것으로 판단되며, 재료분리 특성이 강도 발현성에 영향을 미쳐, ASF의 사용량이 증가할수록 강도 하락 경향이 나타나고 있다. 따라서 ECC 제조를 위한 ASF의 사용은 ASF 단독으로 사용하기에는 성능 확보가 곤란할 것으로 판단된다.

Fig. 2

Properties of ECC at single fiber

/Resources/kci/JKCI.2017.29.2.209/images/Figure_CONCRETE_29_02_09_F2.jpg

ASF와 PVA 혼합사용을 고려하여 섬유 사용량을 총 1.5%로 고정시키고, PVA 및 ASF를 혼합 사용한 경우의 유동성 및 강도 발현 특성을 Fig. 3에 나타내었다.

Fig. 3

Properties of ECC at mixed fibers

/Resources/kci/JKCI.2017.29.2.209/images/Figure_CONCRETE_29_02_09_F3.jpg

총 섬유 사용량을 1.5% 고정시키고 ASF와 PVA를 혼합 사용한 경우, ASF의 사용량이 감소할수록, PVA의 사용량이 증가할수록 ECC의 유동성은 향상되는 경향을 나타내고 있으며, 강도 발현 특성에 있어서도 소폭 증가하는 경향을 나타내고 있어서, ASF와 PVA의 혼합사용 시에는 ASF의 사용량을 ECC의 인장 및 휨 성능을 고려하여 최소화 하는 방향으로 사용량을 결정하는 것이 효과적인 것으로 나타났다.

 PVA와 ASF의 혼합 사용을 고려하여 ASF 사용량을 0.35%로 고정시킨 경우에 대해서 PVA의 사용량을 변화시킨 경우의 유도특성 및 강도 특성을 Fig. 4에 나타내었다.

Fig. 4

Properties of ECC at mixed fibers (fixed ASF 0.35%)

/Resources/kci/JKCI.2017.29.2.209/images/Figure_CONCRETE_29_02_09_F4.jpg

ECC의 유동성의 경우 PVA 사용량이 0.95% 수준까지는 PCSP의 사용량에 따라 Flow도 증가하는 ECC의 유동성의 경우 PVA 사용량이 0.95% 수준까지는 PCSP의 사용량에 따라 Flow도 증가하는 경향을 나타내고 있으나, 그 이상의 사용량 범위에서는 PCSP의 사용량이 증가하여도 Flow는 감소하는 것으로 나타났다. 이는 PVA의 사용량 증가에 따라 섬유의 부피비가 증가하여 유동성을 저해시키는 요인으로 작용한 것으로 판단된다.

강도 발현특성에 있어서는 PVA의 사용량이 증가할수록 압축강도 발현특성은 저하하는 것으로 나타났으나, 휨강도 및 인장강도 특성에 있어서는 PVA의 사용량이 증가할수록 고 인성을 발현하는 것으로 나타났다.

이상의 실험결과를 토대로 기존의 고 인성 ECC에 사용되는 PVA에 대해 ECC의 성능 개선을 목적으로 ASF를 사용할 경우 PVA와 혼합사용하는 것이 효과적이며, 사용량의 범위는 총 섬유 사용량을 1.5% 범위 내에서 ASF는 0.5% 이내, PVA는 1% 이내 사용하는 것이 효과적인 배합 설계일 것으로 판단된다.

3. 플랫플레이트 구조의 접합부 구조성능 실험

3.1 재료의 특성

실험체의 사용재료에서 철근은 KS D 3504의 SD 400 재질을 사용하였고, /Resources/kci/JKCI.2017.29.2.209/images/PICCD31.gif가 24MPa의 콘크리트 사용하였으며 일반 강섬유를 보강한 것과 보강하지 않은 것을 비교 검토하였다. 사용된 강섬유는 형상비 60의 번들타입의 것을 사용하였으며 재료특성은 Table 4에, 사용된 콘크리트의 기준 배합을 Table 5에 나타내었다.

접합부 뚫림전단의 위험단면 내에 타설되는 ECC는 기준 배합은 Table 2로 설계하고 PCSP 사용량은 1.0% 적용하였다. 섬유의 사용은 PVA 단독 사용과 PVA와 ASF 혼합사용 2가지 경우를 검토하였으며, PVA 단독 사용은 1.5%, 혼합 사용은 PVA 1.15%와 ASF 0.35%를 적용하였다. 타설되는 재료의 강도특성을 파악하기 위하여 현장에서 몰드를 제작하여 수증 양생 후 7일과 28일 강도실험을 수행하였으며 그 결과는 Table 6과 같다.

Table 4 Properties of fibers

/Resources/kci/JKCI.2017.29.2.209/images/Table_CONCRETE_29_02_09_T4.jpg

Table 5 Standard mix proportion of concrete

/Resources/kci/JKCI.2017.29.2.209/images/Table_CONCRETE_29_02_09_T5.jpg

Table 6 Results of material tests

/Resources/kci/JKCI.2017.29.2.209/images/Table_CONCRETE_29_02_09_T6.jpg

3.2 실험계획

3.2.1 실험체 설계 및 제작

실험체 크기는 Fig. 5와 같이 1500×1500×130mm로 하였으며, 설계 시 첫째 ECC를 사용하는 기둥과 슬래브 접합부 주변과 둘째 전단보강재인 스터드를 배근하는 전단보강 구역으로 구분하였다. 실험체가 파괴될 때 접합부 주변의 뚫림전단파괴가 휨파괴보다 선행되도록 설계하고자, 상부와 하부에 휨철근으로 HD13을 100mm간격으로 배근하고, 전단보강을 위한 스터드를 제작 가공하여 배근하였다. 특히, 전단보강을 위하여 스터럽을 배근하고자 하였지만, 150mm이하 두께 부재에서 스터럽은 전단 보강효과가 거의 없기 때문에 스터드를 사용하였다. 실험체 슬래브 두께에 배근가능한 스터드 기성품이 생산되지 않아, Fig. 6과 같이 제작 가공하여 설치하였다. 실험체의 슬래브 상․하부 기둥은 300×300mm 크기로 4-HD19 철근을 배근하였다. 시험체 제작 순서로 Fig. 7과 같이 메탈라스로 경계를 구분한 뚫림전단 위험단면 내에 ECC를 먼저 타설하고 전단보강 영역의 콘크리트를 나중에 타설하였다.

Fig. 5

Details of specimens

/Resources/kci/JKCI.2017.29.2.209/images/Figure_CONCRETE_29_02_09_F5.jpg
Fig. 6

Details of Stud

/Resources/kci/JKCI.2017.29.2.209/images/Figure_CONCRETE_29_02_09_F6.jpg
Fig. 7

Placement of ECC at critical section zone of     punching shear

/Resources/kci/JKCI.2017.29.2.209/images/Figure_CONCRETE_29_02_09_F7.jpg

3.2.2 실험변수 및 스트레인게이지 부착위치

이 연구의 구조실험 변수는 ECC에 혼입한 섬유 종류, 전단보강구역의 스터드 설치와 강섬유 콘크리트 타설 여부였으며 Table 7과 같다. 여기서, 1계열 실험체는 접합부 주변에 PVA와 비정질 강섬유를 혼합하였고 전단보강 구역은 일반 강섬유 콘크리트 및 스터드를 배근하였다. 2계열 실험체는PVA섬유를 접합부 주변에 혼입하였고 전단보강 구역은 1계열과 같은 조건으로 하였다. 3계열에서 3-1은 PVA섬유의 접합부 주변과 스터드만 배근된 실험체, 3-2는 접합부 주변만 PVA섬유가 혼입되고 스터드 구역은 보강되지 않은 실험체이다. 4계열의 4-1과 4-2는 PVA와 비정질강섬유가 혼입되어 있으면서 스터드의 유무에 차이를 둔 실험체이다. 5계열 실험체는 변수별 실험체 거동을 비교하기 위한 기준 실험체로서 일반 콘크리트가 타설된 접합부 주변에 스터드의 유무만 차이가 나게 만든 실험체이다.

실험체 거동을 알아보기 위하여 휨철근과 스터드에 스트레인게이지를 부착하였는데, 휨철근의 부착위치는 기둥 센터와 기둥면에서 100mm 위치, 기둥면에서 300mm 떨어진 곳이고, 스터드의 부착위치는 기둥면에서 100mm, 300mm 떨어진 곳이다.

3.2.3 실험방법

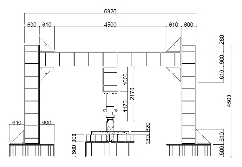
실험체 설치는 Fig. 8과 같이 가력프레임 중앙부에 높이 600mm 지그를 4개 설치한 후 그 위에 실험체 단부를 100mm 걸쳐 단순지지 상태로 만드는 방법으로 하며, 실험체 기둥 상단에 설치된 유압 가력기를 1mm/분의 속도로 가력하여 40∼50mm정도 처짐이 발생할 때까지 가력하는 방법으로 실험을 진행하였다. 가력 중 변화되는 변위를 측정하기 위하여 기둥 아랫면과 기둥으로부터 75mm위치인 슬래브 슬래브 중앙부 하부면에 다이얼게이지를 설치하였다.

Table 7 Test parameters

/Resources/kci/JKCI.2017.29.2.209/images/Table_CONCRETE_29_02_09_T7.jpg

○: Parameter included in the test specimen

×: Parameter not included in the test specimen

Fig. 8

Test setup

/Resources/kci/JKCI.2017.29.2.209/images/Figure_CONCRETE_29_02_09_F8.jpg

플랫플레이트 시스템의 슬래브-기둥 접합부 주변 뚫림전단 위험단면 구역에 적용한 ECC의 연성 개선효과와 그 외 전단보강 구역에 적용한 스터드와 강섬유 콘크리트의 전단보강효과를 알아보기 위하여 각기 다른 8개의 변수를 적용한 실험체에 대해 구조실험을 실시하였으며 균열 및 파괴양상, 하중-처짐 관계 및 하중-변형률 관계 등을 비교 분석하였다.

3.3 실험 결과

3.3.1 균열 및 파괴양상

모든 실험체의 파괴양상은 전형적인 뚫림전단 파괴였다. 슬래브 상부 면에서는 기둥 주변에서, 슬래브 하부 면에서는 기둥을 중심으로 둥글게 퍼져나가는 원추형의 파괴가 Fig. 9와 같이 나타났다.

Fig. 9

View of crack pattern

/Resources/kci/JKCI.2017.29.2.209/images/Figure_CONCRETE_29_02_09_F9.jpg

변수별 파괴양상은 Fig. 10과 같은데, 여기서 ECC 혼입 섬유종류에 따른 차이를 살펴보면 PVA섬유를 사용한 실험체 2-1이나 비정질 강섬유와 PVA 섬유 혼입인 1-1 시험체의 경우 균열양상은 비슷하게 나타났다. 기둥 주변에 ECC의 타설 유무에 따른 균열양상을 살펴보면, ECC가 타설된 3-1실험체가 그렇지 않은 5-1실험체와 비교하여 균열의 크기나 진전 상태가 작게 나타났다. 스터드의 영향을 살펴보면, 스터드가 설치되지 않은 3-2 실험체는 스터드가 설치된 3-1 실험체보다 훨씬 큰 균열이 발생하였다.

Fig. 10

Crack pattern

/Resources/kci/JKCI.2017.29.2.209/images/Figure_CONCRETE_29_02_09_F10.jpg

전단보강 영역의 강섬유 콘크리트 영향은 3-1과 2-1 실험체의 비교로부터 확인할 수 있었다. 강섬유 콘크리트가 타설된 2-1 실험체가 3-1보다 균열이 분산되게 나타났으며, 이로부터 연성 개선의 효과를 확인할 수 있었다.

3.3.2 하중-변위 및 하중-스트레인 관계

1) 섬유의 종류별 실험결과 비교4)

ECC 제조 시 사용된 섬유의 종류에 따른 실험결과를 비교하였으며, Figs. 11 및 12와 같다. Fig. 11은 전단보강 구역에 스터드를 설치하고 강섬유 콘크리트를 사용한 경우이며, Fig. 12는 전단보강 구역에 스터드만을 설치한 조건이다. 여기에서 PVA ECC의 최대내력은 560∼590kN, PVA와 비정질강섬유를 혼입한 ECC는 520∼550kN정도로 PVA만 사용한 ECC의 내력이 크게 나타났으며, 이는 현장에서 시멘트 풍화와 믹서의 성능이 낮아 섬유배합이 원활하지 못한 것에 기인한 것으로 판단된다.

Fig. 11

Load – displacement and Load – strain relationship according to fiber type with stud and steel fiber concrete

/Resources/kci/JKCI.2017.29.2.209/images/Figure_CONCRETE_29_02_09_F11.jpg
Fig. 12

Load – displacement and Load – strain relationship according to fiber type only with stud

/Resources/kci/JKCI.2017.29.2.209/images/Figure_CONCRETE_29_02_09_F12.jpg

2) 접합부 주변의 ECC 사용 여부에 따른 실험결과 비교

플랫플레이트 슬래브-기둥 접합부위에 ECC를 사용한 실험체인 3-2와 일반 콘크리트를 타설한 실험체인 5-2를 비교한 결과는 Fig. 13과 같다. 여기서 두 실험체 모두 전단 보강이 없기 때문에 최대하중지지 후 급격한 내력저하가 발생하였지만, ECC 사용 실험체가 내력과 연성도가 상대적으로 우수하게 나타났다.

Fig. 13

Load – displacement and Load – strain relationship with or without ECC in critical section of punching shear

/Resources/kci/JKCI.2017.29.2.209/images/Figure_CONCRETE_29_02_09_F13.jpg

3) 전단보강구역의 스터드 사용에 따른 실험결과 비교

슬래브-기둥 접합부에 ECC를 사용하지 않고 현장 타설 콘크리트로 제작한 실험체들의 스터드 효과를 보기위한 실험에서 Fig. 14와 같이 스터드가 있는 5-1실험체는 완만한 하중-변위 관계를 갖지만 스터드가 없는 5-2실험체는 급격한 하중저하를 경험한 후 휨철근의 지지력에 의한 내력증가 양상을 띠었다.

Fig. 14

Load – displacement and Load – strain relationship with or without stud

/Resources/kci/JKCI.2017.29.2.209/images/Figure_CONCRETE_29_02_09_F14.jpg

4) 전단보강 구역의 강섬유콘크리트 타설 여부에 따른실험결과 비교2)

전단보강 구역 내 강섬유 콘크리트 타설 여부에 따른 하중-변위관계는 Fig. 15에 나타나있다. 강섬유 콘크리트를 사용한 2-1실험체는 최대하중을 받은 후 완만한 내력저하를 보여주는 반면, 강섬유 콘크리트가 없는 3-1실험체는 최대하중지지 후 급격한 내력저하가 나타났다. 이로부터 스터드 구간부의 강섬유 콘크리트 효과가 있는 것을 확인할 수 있었다.

Fig. 15

Load – displacement and Load – strain relationship with or without steel fiber concrete at shear reinforcing zone

/Resources/kci/JKCI.2017.29.2.209/images/Figure_CONCRETE_29_02_09_F15.jpg

4. 결   론

이 연구에서는 ECC제조를 위한 다양한 섬유의 사용방법을 제시하고자 PVA섬유뿐 아니라 일반 강섬유의 단점을 개선한 비정질강섬유를 활용한 ECC 설계배합을 제안하였다. 이 배합으로 만든 ECC를 플랫플레이트 구조의 슬래브-기둥 뚫림전단 위험단면 구역에 사용하였으며 그 외 전단보강 구역에 스터드 보강과 아울러 연성개선 목적으로 강섬유 콘크리트를 타설하였다. ECC에 혼입한 섬유 종류, 전단보강 구역의 스터드 설치와 강섬유 콘크리트 타설 여부를 변수로 구조성능 실험을 수행하였으며, 그 결과는 다음과 같다.

1)ECC 배합설계 시 시공성 및 성형성을 고려하여 비정질 강섬유의 사용량은 총 섬유 사용량의 50% 이내로 설계하는 것이 효과적인 것으로 판단되었으며, 이 연구에서는 PVA 1.15%, 비정질강섬유 0.35%를 혼입하여 적용하였다.

2)접합부 주변 뚫림전단의 위험단면 구역에 ECC를 타설한 3-1 실험체의 최대 내력은 570kN으로서 ECC가 없이 일반 콘크리트로 타설한 5-1의 520kN보다 10% 높게 나타났다.

3)접합부 주변 뚫림전단의 위험단면 구역에 ECC를 타설한 실험체 중 사용된 섬유종류별로 결과를 살펴보면, PVA섬유를 사용한 2-1과 3-1 최대 내력이 590kN, 570kN을 나타내는 반면 PVA와 비정질강섬유를 혼합한 1-1, 3-1은 각각 540 kN, 520 kN으로 40 kN 정도 작았다. 구조실험체 제작이전 ECC개발단계의 공시체 압축실험에서는 PVA와 비정질강섬유 혼합 ECC의 압축강도가 더 크게 나왔는데, 구조 실험용 실험체에서 압축강도가 작았던 이유는 현장의 믹서 성능이 좋지 않아 잘 섞여지지 못하였기 때문으로 판단되었다.

4)뚫림전단에 대한 위험단면 구역의 인접 전단보강 부위에 스터드가 설치된 3-1의 최대 내력이 570kN, 스터드가 없는 3-2는 520kN로, 스터드에 의한 내력 증가를 확인하였다. 한편, 이 부위 강섬유 콘크리트가 타설된 2-1과 강섬유를 혼입하지 않은 3-1의 경우 최대내력까지는 두 실험체 비슷하였지만 3-1실험체가 최대 내력 도달 후 취성파괴를 보여 강섬유 콘크리트의 연성 개선 효과를 확인할 수 있었다.

Acknowledgements

이 논문은 2015년도 교육부의 재원으로 한국연구재단의 지원을 받아 수행된 지역대학우수과학자지원사업(NRF-2015R1-D1A3A01019366) 연구결과의 일부입니다.

References

1 
Kwon, W.-H., “Behavior of Steel Fiber - Reinforced Concrete Connections under Cyclic Loads”, Kumho National Institute of Technology, Doctoral thesis, 2012.Google Search
2 
Kim, H.K., “Ductility of Column-Slab Joint in R/C Flat Plate System”, Journal of the Korea Concrete Institute, Vol.12, No.4, 2000.Google Search
3 
Choi, S.W., “The Property of Workability and Compressive Strength of Amorphous Fibers Mixed ECC”, Proceedings of the Korea Concrete Institute, Vol.25 No.1, 2015.Google Search
4 
Choi, K.H., “The Effect of Shear Reinforcement with Steel Fiber and Stud at the Flat Plate Slab”, Proceedings of the Korea Concrete Institute, Vol.25, No.1, 2015.Google Search