Mobile QR Code QR CODE
Export citation EndNote




고인성섬유 복합모르타르, 내진성능, 외부 보-기둥 접합부, 반복하중, 전단보강근
high ductile fiber-reinforced mortar, seismic performance, exterior beam-column joint, cyclic loads, shear reinforcement

  • 1. 서 론

  •   1.1 연구배경 및 목적

  •   1.2 연구범위 및 방법

  • 2. 고인성섬유 복합모르타르의 설계개념

  • 3. 구조성능 실험

  •   3.1 실험체의 형태 및 변수

  •   3.2 사용재료

  •   3.3 실험체 설치상황 및 실험방법

  • 4. 결과 및 고찰

  •   4.1 이력거동 특성

  •   4.2 파괴형태

  •   4.3 최대내력변화 특성

  •   4.4 강성변화 특성

  •   4.5 에너지 소산능력

  •   4.6 연성능력 비교

  •   4.7 보의 소성힌지 영역의 신장

  •   4.8 철근의 변형률

  • 5. 결 론

1. 서    론

1.1 연구배경 및 목적

최근 국내·외에서 건설되는 철근콘크리트 구조물이 초고층화, 대형화와 더불어 다양화되고 있다. 이에 따라 콘크리트 성능에 대한 고성능화도 요구되면서, 콘크리트와 건설재료들의 변화 및 발전이 급격하게 진행되고 있다. 특히, 콘크리트는 건설재료들 중에서도 가장 변화와 발전이 급진전되고 있다.1-3) 콘크리트의 장점인 높은 압축강도와 경제성, 내구성 등을 기본으로 포함하면서, 단점인 휨 및 인장강도가 약하고 취성적 파괴거동과 균열에 대한 저항성 등의 특성을 향상시키거나 개선하기 위하여 인장강도와 탄성률이 높은 섬유 복합재료를 활용한 연구가 국내․외 산․학에서 활발한 연구가 진행 중에 있다. 국내에서는 하기주,4-6) 김윤용,7-9) 윤현도10,11) 등에 의하여 최적의 시멘트계 복합재료 및 이를 적용한 구조물에 대한 연구가 진행 중이고, 국외에서는 Victor C. Li13,14) 등은 시멘트계 복합재료에 마이크로역학을 적용하여 섬유와 매트릭스간의 응력전달과 파괴 현상 등의 분석과 인장변형률 경화거동특성을 제안하였고, Marshall15) 등은 안정상태 균열이론을 제안하였다.

따라서 이 연구에서는 Victor C. Li 등이 분석한 마이크로역학이론을 이용해 역학적 구성요소인 섬유(fiber), 매트릭스(matrix), 섬유-매트릭스 경계면(fiber-matrix interface)의 역학적 특성을 파악하였다.13,15) 또한, 이를 최적화하기 위해 Marshall 등이 제안한 안정상태 균열이론을 적용하여 최적배합의 고인성섬유 복합모르타르를 개발하였다. 그리고 이를 철근콘크리트 구조물에 활용하여 지진하중과 같은 비탄성 변형을 일으키는 횡력이 작용할 때 응력부담이 높은 보-기둥 접합부 영역에 내력과 연성능력을 향상시키고, 철근콘크리트 구조물의 안전성을 증대시키고자 한다.12) 따라서 고인성섬유 복합모르타르를 활용한 고강도 철근콘크리트 외부 보-기둥 접합부의 파괴양상 및 이력거동, 에너지소산 등을 고찰하여 내진성능을 평가하고 철근콘크리트 구조물의 성능개선 설계시 기초자료로 활용하고자 한다.

1.2 연구범위 및 방법

이 연구에서는 철근콘크리트 건축물이 지진하중을 받을 때 내력, 정착, 대각균열에 의한 파괴가 일어나기 매우 쉬운 외부 보-기둥 접합부를 대상으로 하여 내력 및 내진성능 향상을 위한 새로운 보강 개념의 개발을 위하여, 실제 구조물의 1/2크기로 모델화한 실험체를 대상으로 한 고성능 철근콘크리트 보-기둥 접합부의 내진성능을 평가하고 그 결과를 비교·분석한다.

또한, 기존 철근콘크리트 외부 보-기둥 접합부의 시공성과 내진성능을 개선하기 위한 주요 실험변수로는 접합부영역(1.5d)의 스터럽 및 띠철근 제거, 고인성섬유 복합모르타르 보강(PVA섬유 혼입률 1.0%, 1.5%, 2.0%) 등을 사용하였으며 실험변수별 상호 비교·분석하여 외부 보-기둥 접합부의 내력증진 및 내진성능 향상을 위한 새로운 보강 설계 개념을 정립하고자 한다.

2. 고인성섬유 복합모르타르의 설계개념

이 연구에서는 고인성섬유 복합모르타르를 연성과 강도 측면에서 보다 개선되는 재료를 개발하기 위하여 마이크로역학과 안정상태 균열이론에 근거하였다. 이때 고려되는 기본적인 역학적 구성요소는 섬유,모르타르 매트릭스, 섬유-매트릭스 경계면으로 재료 개발 과정을 개념적으로 표현하면 Fig. 1과 같다.6)

/Resources/kci/JKCI.2013.25.4.419/images/PICF6FC.gif

Fig. 1 Design concept

섬유복합 모르타르가 인장변형률 경화거동을 나타내기 위해서는 안정상태 균열발생의 필요조건을 만족함으로써, 인장력 하에서 다수의 미세균열이 발생하여야 한다. 이러한 필요조건이 안정상태 균열이론이며 이를 적용하기 위해서는 먼저 섬유복합 모르타르 미세구조의 역학적 특성을 이용하여 균열면 거동을 해석적으로 구하여야 한다. 이때에 사용되는 이론적인 배경이 마이크로역학이다.5,8)

안정상태의 균열을 발생시키기 위한 첫 번째 조건은 섬유복합 모르타르의 균열면 보상에너지 /Resources/kci/JKCI.2013.25.4.419/images/PICF789.gif가 매트릭스의 균열선단 파괴인성 /Resources/kci/JKCI.2013.25.4.419/images/PICF79A.gif보다 항상 커야 한다는 에너지 조건이다.15)

여기서, /Resources/kci/JKCI.2013.25.4.419/images/PIC1DC3.gif :최대 균열면 응력 /Resources/kci/JKCI.2013.25.4.419/images/PIC1DD3.gif에 해당되는 균열개구변위

    /Resources/kci/JKCI.2013.25.4.419/images/PIC1E13.gif :매트릭스의 파괴 인성

    /Resources/kci/JKCI.2013.25.4.419/images/PIC1E23.gif :탄성계수

/Resources/kci/JKCI.2013.25.4.419/images/PIC1E63.gif는 Fig. 1의 Task 2에 나타낸 균열면 응력(/Resources/kci/JKCI.2013.25.4.419/images/PIC1E73.gif)과 균열개구변위(/Resources/kci/JKCI.2013.25.4.419/images/PIC1E93.gif)의 관계로부터 계산할 수 있다.

두 번째 조건은 /Resources/kci/JKCI.2013.25.4.419/images/PIC1EA4.gif가 1축인장 균열강도 /Resources/kci/JKCI.2013.25.4.419/images/PIC1EC4.gif보다 반드시 큰 값이어야 한다는 인장강도 조건이다. 이 조건이 만족되지 못할 경우, 변형이 다수의 균열로 전파되지 못하고, 최초에 발생된 균열로 모든 변형이 집중되는 유사취성재료의 거동을 나타내게 된다.

여기서, /Resources/kci/JKCI.2013.25.4.419/images/PIC1F14.gif는 최대초기결함의 크기와 /Resources/kci/JKCI.2013.25.4.419/images/PIC1F82.gif에 의하여 결정되는 것으로 알려져 있다. 마이크로역학의 이론에 관한 자세한 내용은 Li 등에 의한 연구 결과에 나타난 바와 같다.

에너지 조건과 인장강도 조건은 반드시 함께 충족되어야 한다. 결과적으로 식 (1)과 (3)을 만족시킴으로써 기존의 콘크리트(또는 모르타르)가 갖고 있는 유사취성을 높은 연성으로 변화시킬 수 있다. 이러한 방법을 이용하면 최소의 실험적인 접근(trial-error)으로 고인성섬유 복합 모르타르를 설계할 수 있고 보강 섬유의 효율을 극대화할 수 있을 것으로 판단된다.

3. 구조성능 실험

3.1 실험체의 형태 및 변수

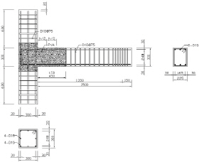
반복 주기하중을 받는 철근콘크리트 보-기둥 접합부에 접합부영역 1.5D만큼 전단보강근을 제거하여 고인성섬유 복합모르타르를 활용하여 대체 보강한 실험체의 내진성능을 평가하기 위하여 실제 구조물의 1/2정도의 크기로 축소한 5개의 실험체를 제작하였다. 철근콘크리트 외부 보-기둥 접합부의 설계는 ACI Building code(318-08) 및 ACI-ASCE 352위원회의 권장안, 국토부 콘크리트 구조설계 규준의 권장안에 따라 설계되었다. 철근콘크리트 보-기둥 접합부 실험체의 변수 및 내용은 Table 1과 같고, 각 실험체의 상세는 Fig. 2(a)∼(c)에 나타나 있다.

/Resources/kci/JKCI.2013.25.4.419/images/PIC1FD1.jpg

/Resources/kci/JKCI.2013.25.4.419/images/PIC2040.jpg

(a) Specimen BCJC

(b) Specimen BCJNS

/Resources/kci/JKCI.2013.25.4.419/images/PIC208F.jpg

(c) Specimen BCJNSP series

Fig. 2 Details of test specimen (unit: mm)

Table 1 Design parameters of test specimen

Specimen

Main objectives and design parameters

BCJC

■ Evaluation of structural performance ACI Building Code 318M-08 and ACI-ASCE 352 Recommendation

BCJNS

■ Evaluation of structural performance ACI Building Code 318M-08 and ACI-ASCE 352 Recommendation

■ No the shear reinforcement within joint region

BCJNS*P1.0

■ No the shear reinforcement within joint region

■ PVA 1.0% content of joint region

BCJNS*P1.5

■ No the shear reinforcement within joint region

■ PVA 1.5% content of joint region

BCJNS*P2.0

■ No the shear reinforcement within joint region

■ PVA 2.0% content of joint region

Note) B : Beam, C : Column, J : Joint, C : Cyclic, N : No, S* : Shear reinforcement, P : PVA

3.2 사용재료

3.2.1 철근

이 연구의 실험체에 사용된 철근은 국내에서 생산된 SD400의 철근이 사용되었으며, 보 및 기둥의 주철근은 D19가 배근되었고 전단보강근에는 D10이 배근되었다. 그리고 이 실험에 사용된 철근의 재료 특성을 파악하기 위하여 KS B 0801(금속재료 인장시험편 규정)에 따라 시험편을 제작하였으며 KS B 0802의 금속재료 인장 시험방법에 따라 시험을 하였고 결과는 Table 2와 같다.

3.2.2 콘크리트

콘크리트의 배합은 요구강도와 시공성 및 선정된 재료를 고려하여 설계되었으며 콘크리트의 배합표는 Table 2와 같다. 각 실험체는 콘크리트 타설과 함께 압축강도용 공시체를 제작하였다. 압축강도용 원주형 공시체는 Φ100× 200mm 몰드를 사용하여 KS F 2405에 따라 몰드를 3개 층으로 나누어 각 층을 25회씩 봉다짐하여 제작하였고, 재령 28일까지 수중양생을 실시하였다. 그리고 1000 kN용량의 UTM으로 일방향 압축강도 시험을 하였다. Table 3에 나타난 콘크리트 압축강도는 각각 5개의 공시체의 실험 결과에 대한 평균값이다.

3.2.3 고인성섬유(PVA) 복합모르타르

실험체에 사용된 섬유는 Fig. 3과 같이 다양한 형상의 섬유중에서 예비실험을 통하여 분산성, 시공성, 적합성을 고려하여 K사에서 생산되어진 PVA(poly vinyl alcohol)섬유 REC15를 선정하였다. 사용된 섬유의 물리적인 성질은 표 3.5에 나타낸 바와 같고 배합표는 Table 4와 같다.

제1종 포틀랜드 시멘트가 주 결합재로 사용되었고 잔골재는 규사(평균입도: 110/Resources/kci/JKCI.2013.25.4.419/images/PIC20AF.gif)를 사용하였으며 섬유의 효과적인 분산을 위하여 카르복실계 감수제(PCSP)와 셀룰로즈계 분리저감제(HPMC)를 혼화제로 첨가하였다. 공시체는 콘크리트 배합 때와 같은 방법으로 제작하였다.

Table 2 Material properties of reinforcing bar

Bar size

fy (MPa)

σs (MPa)

Es (MPa)

D19

473.8

614.9

2.0×105

D10

478.8

605.7

2.1×105

Table 3 Mix proportion of concrete

Compressive strength(MPa)

W/C

(%)

S/a

(%)

Mix proportion(kg/m3)

Slump

(mm)

C

W

S

a

AD

42

31.3

42.9

530

154

738

958

5.3

120

Table 4 Test result of concrete strength (unit: MPa)

Age (day)

7

14

28

fck (MPa)

30.62

34.14

45.5

Table 5 Material properties of PVA fiber

Diameter

(μm)

Length

(mm)

Nominal

strength

(MPa)

Elongation

(%)

Oiling agent

content (%)

Young’s

modulus

(GPa)

39

12

1,620

6

0.8

38.9 

Table 6 Mix proportion of ECC

Material

Cement

Sand

Slag

Water

PCSP

HPMC

PVA

fiber

Weightratio (%)

100

80

25

48

3

0.3

1.0

1.5

2.0

Note) All number are mass ratios of cement weight. But, fiber is volume ratio.PCSP: Polycarboxylate water-reducing admixtureHPMC: Hydroxypropylmethyl-cellulose

/Resources/kci/JKCI.2013.25.4.419/images/PIC4C61.jpg

Fig. 3 Material type of PVA fiber

3.3 실험체 설치상황 및 실험방법

이 연구는 실험체에 작용하는 하중제어를 위하여 서보시스템을 사용하였으며 실험체는 Fig. 4와 같이 실험을 위한 프레임에 기둥 부분을 수평으로 눕혀서 설치하였다. 철근콘크리트 보-기둥 접합부의 거동을 파악하기 위하여 5개의 실험체에 기둥의 허용 축하중을 기둥에 일정하게 가력하였다. 그리고, 보의 변곡점에 로드셀을 부착한 유압 서보 액츄에이터를 사용하여 변위제어에 의해 반복 주기하중을 작용시켰다. 반복 주기하중의 형태는 Fig. 5와 같다. 반복 주기하중의 주기는 전 실험체를 T=70sec로 하였으며 반복회수는 2 cycle로 최대수평하중에 도달한 이후 최대하중이 80%이하로 떨어질 때까지 변위를 증가시키며 반복가력을 실시하였다.

/Resources/kci/JKCI.2013.25.4.419/images/PIC4CC0.jpg

Fig. 4 Test setup of test specimen

/Resources/kci/JKCI.2013.25.4.419/images/PIC4D3E.gif

Fig. 5 Loading history

4. 결과 및 고찰

4.1 이력거동 특성

이 연구에서는 각 설계변수에 따른 실험체의 이력거동을 규명하기 위하여 표준 철근콘크리트 보-기둥 접합부 실험체 BCJC의 반복주기 하중을 가하여 기둥면의 보 주근에 부착한 변형률 게이지의 측정치가 항복변형에 이를 때 보의 하중 작용점의 변위를 항복변위로 구하고, 변위제어로 최종파괴시까지 가력하여 이력거동곡선을 Fig. 6과 같이 나타내었다. 각 실험체의 이력거동곡선은 접합부영역 1.5d에 스터럽 및 띠철근을 제거한 영역에 고인성섬유 복합모르타르를 타설한 고강도 철근콘크리트 보-기둥 접합부 실험체 BCJNSP 시리즈는 PVA섬유 혼입량에 따라 BCJNSP2.0>BCJNSP1.5>BCJNSP1.0의 순서로 최대내력의 증가와 안정적인 이력거동을 나타냈다. 접합부영역 1.5d에 스터럽 및 띠철근을 제거한 실험체 BCJNS는 반복 주기하중이 작용할 때 재하 전반부는 강도 및 강성이 높으나 재하 후반부에서는 급격히 내력이 감소하는 불안정한 이력거동을 나타내었다. 접합부영역 1.5d에 스터럽 및 띠철근을 제거한 영역에 고인성섬유 복합모르타르를 타설한 고강도 철근콘크리트 보-기둥 접합부 실험체 BCJNSP 시리즈는 표준실험체 BCJC와 비슷한 이력거동 특성을 나타내었다. 또한, 실험체 BCJNS 비하여 강도 및 강성이 증가 되었으며, 하중 재하시 전 영역에 걸쳐 안정적인 이력거동을 나타내었다.

4.2 파괴형태

4.2.1 표준실험체

이 연구의 표준실험체 BCJC는 반복 주기하중이 진행되는 동안 보와 기둥의 접합면에 균열이 발생하였고, 변위연성이 클수록 보의 내측으로 균열이 확산되었다. 초기균열은 변위연성 0.5범위에서 발생하였다. 보-기둥 접합면의 균열은 변위연성 1.5에서 접합부 균열이 발생하였다. 실험이 진행됨에 따라 접합면에 균열집중 현상을 나타내며 보의 압축측과 인장측의 콘크리트가 박리, 탈락, 철근이 노출되는 현상을 나타냈었다. 접합부영역 1.5d에 스터럽 및 띠철근을 제거한 실험체 BCJNS는 표준실험체인 BCJC와 마찬가지로 반복 주기하중이 진행되는 동안 보와 기둥의 접합면에 균열이 발생하였고, 변위연성 3에서 최종파괴가 일어났다. 실험이 진행됨에 따라 접합면에 균열집중 현상을 나타내며 보의 1.5d만큼 스터럽을 제거한 영역에서 압축측과 인장측의 콘크리트가 박리, 탈락, 철근이 노출되는 현상을 나타냈었다.

/Resources/kci/JKCI.2013.25.4.419/images/PIC4D9C.gif

(a) Specimen BCJC

/Resources/kci/JKCI.2013.25.4.419/images/PIC4F90.gif

(b) Specimen BCJNS

/Resources/kci/JKCI.2013.25.4.419/images/PIC5A89.gif

(c) Specimen BCJNSP1.0

/Resources/kci/JKCI.2013.25.4.419/images/PIC5B17.gif

(d) Specimen BCJNSP1.5

/Resources/kci/JKCI.2013.25.4.419/images/PIC64A9.gif

(e) Specimen BCJNSP2.0

Fig. 6 Load-displacement relationship of each test specimen

4.2.2 고인성섬유 복합모르타르를 활용한 고강도 철근콘크리트 보-기둥 접합부 실험체

고인성섬유 복합모르타르를 활용한 고강도 철근콘크리트 보-기둥 접합부 실험체(BCJNSP 시리즈)의 파괴형태는 Fig. 8(a)~(c)에 나타낸 바와 같이 안정적인 파괴를 나타내었다. BCJNSP1.0, BCJNSP1.5는 접합부에 콘크리트의 탈락과 철근이 노출되며 파괴되었다. 각 실험체들은 보 내측의 휨 균열이 발생된 이후에 균열의 폭이 증가하지 않고, 이미 발생되어진 균열의 주변으로 추가의 미세 균열들이 발생하는 특성을 나타내었다. 이때의 균열 폭은 최종파괴를 일으킨 균열을 제외하고는 모두 미세하게 제어되었다. 이것은 섬유가 균열과 균열사이의 가교역할에 의한 것으로 판단된다. 이러한 특성은 구조물의 전단 및 내구성 증진에 기여할 것으로 판단된다.

/Resources/kci/JKCI.2013.25.4.419/images/PIC7FC8.gif

(a) Specimen BCJC

/Resources/kci/JKCI.2013.25.4.419/images/PIC80E2.gif

(b) Specimen BCJNS

Fig. 7 Crack pattern of each test specimen

4.3 최대내력변화 특성

/Resources/kci/JKCI.2013.25.4.419/images/PIC88DE.gif

(a) Specimen BCJNSP1.0

/Resources/kci/JKCI.2013.25.4.419/images/PIC9A1E.gif

(b) Specimen BCJNSP1.5

/Resources/kci/JKCI.2013.25.4.419/images/PICA22A.gif

(c) Specimen BCJNSP2.0

Fig. 8 Crack pattern of each test specimen

고강도 철근콘크리트 보-기둥 접합부의 내진성능 평가 및 개선기술의 개발을 위하여 접합부 영역의 전단보강근을 고인성섬유 복합모르타로 대체한 실험체 BCJNSP 시리즈의 구조성능 평가를 위한 실험을 수행하여 각 실험체의 이력거동 및 실험진행 중의 균열상태를 근거로 각 실험체의 강도변화 특성을 비교하기 위하여 변위연성(displacement ductility)과 각 실험체의 강도와의 관계를 Fig. 9에 나타내었다. BCJNSP 시리즈는 표준실험체 BCJC와 비슷한 강도의 증진 및 안정적인 이력거동 특성을 나타내었다. BCJNSP1.5, BCJNSP2.0는 변위연성 4정도 까지는 안정적으로 내력을 확보하였다. 또한 실험체 BCJNSP2.0의 경우 최대내력이 표준실험체 BCJC와 비슷한 96%의 내력을 발휘 하였고, 실험체 BCJNS에 비하여 최대내력이 2.03배 증가되는 것을 나타내었다.

4.4 강성변화 특성

각 실험체의 싸이클별 강성(stiffness, k)의 변화를 그림 Fig. 11에 나타내었고, 실험체의 강성은 Fig. 10과 같은 방법으로 구하였다. 여기서 강성 k는 각 하중의 싸이클에서 정방향과 부방향에서의 최대하중과 최대변위가 만나는 점의 기울기로 산정하였다. 각 실험체의 강성은 반복주기하중이 작용하는 동안 반복횟수가 증가할수록 점차 감소하는 현상을 보이고 있다. 이러한 강성 감소의 주요 원인은 접합부 영역의 콘크리트의 균열, 철근의 미끄러짐 등에 의한 것으로 사료된다. 초기강성은 표준실험체 BCJC가 가장 작게 나타났으며, 실험체 BCJNSP2.0, BCJNSP1.5, BCJNSP1.0 순으로 커졌다. 실험이 진행됨에 따라 초기강성의 약10%까지 떨어졌으며 이러한 감소는 모든 실험체가 비슷한 양상을 보였다. 그리고 실험체 BCJNS는 초기강성 이후 급격히 감소하였으며, 실험체 BCJNSP시리즈는 초기강성이 표준실험체 BCJC보다 약 20%의 증가와 비슷한 강성 감소율을 나타내었다.

/Resources/kci/JKCI.2013.25.4.419/images/PICCD52.gif

Fig. 9 Maximum load carried by each specimen at various displacement ductilities

/Resources/kci/JKCI.2013.25.4.419/images/PICCDEF.gif

Fig. 10 Calculation of stiffness

/Resources/kci/JKCI.2013.25.4.419/images/PICB619.gif

Fig. 11 Comparison of stiffness for each specimen at various cycle

/Resources/kci/JKCI.2013.25.4.419/images/PICB8B9.gif

Fig. 12 Comparison of energy dissipation capacity for each specimen at various displacement ductilities

4.5 에너지 소산능력

이 연구에서는 반복 주기하중을 받는 고강도 철근콘크리트 보-기둥 접합부의 고성능화를 위한 주요 설계변수인 고강도 철근콘크리트 보-기둥 접합부의 영역의 보 및 기둥의 전단보강근을 고인성섬유 복합모르타르로 대체한 보-기둥 접합부의 구조성능을 이력거동을 통하여 비교・분석한 결과, 고강도 철근콘크리트 외부 보-기둥 접합부의 영역의 보 및 기둥의 전단보강근을 고인성섬유 복합모르타르로 대체한 BCJNSP시리즈는 실험체 BCJNS에 비하여 에너지 소산능력이 훨씬 증가하였다. 특히, BCJNSP1.5는 표준실험체 BCJC에 비하여 누적에너지소산능력이 1.62배 증가하였다. 또한, BCJNSP1.5, BCJNSP2.0는 표준실험체 BCJC와 유사한 에너지 소산능력을 나타내었다.

4.6 연성능력 비교

각 실험체의 연성능력은 항복변위에 대한 변위연성비(/Resources/kci/JKCI.2013.25.4.419/images/PICD540.gif)로 정의하였다. 이 연구에서는 부재항복시의 처짐량(/Resources/kci/JKCI.2013.25.4.419/images/PICD551.gif)을 기준으로 부재의 최대하중시 변위와 최대하중 이후 최대하중의 80%에서의 변위(/Resources/kci/JKCI.2013.25.4.419/images/PICD581.gif)를 이용하여 평가하였다. 또한, 부재 항복변위(/Resources/kci/JKCI.2013.25.4.419/images/PICD582.gif)는 보-기둥 접합면 보의 주철근이 항복하는 시점의 변위 또는 극한강도점을 지나는 수평선과 극한강도의 75%점을 지나는 할선강성선과의 교점으로 하는 Park Method로 정의하였으며, 각 실험체의 연성능력은 Fig. 13과 같다. 고인성섬유 복합모르타르의 전단보강 효과를 평가하기 위하여 제작된 보-기둥 접합부영역에 스터럽 및 띠철근을 제거한 실험체 BCJNS의 경우 연성능력이 표준실험체 BCJC의 49%로 나타났다.

/Resources/kci/JKCI.2013.25.4.419/images/PICDD02.gif

Fig. 13 Comparison of cumulative energy dissipation capacity for each specimen at various displacement ductilities

보-기둥 접합부영역에 스터럽 및 띠철근을 제거한 후 PVA섬유 1.0%, 1.5%, 2.0%가 함유된 고인성섬유 복합모르타르를 타설한 실험체 BCJNSP 시리즈의 경우 연성능력이 표준실험체 BCJC와 비교하여 1.12~1.24배 증가하였으며, BCJNS에 비하여 2.27~2.53배 증가하였다.

고인성섬유 복합모르타르로 보-기둥 접합부영역을 보강한 실험체의 경우 스터럽 및 띠철근으로 인한 전단보강이 되어 있지 않으나 고인성섬유 복합모르타르의 효과로 인해 PVA섬유가 균열과 균열사이에서 가교역할을 하여 인장력 전달 능력이 지속되면서 균열폭이 제어 되어 균열이 미세균열로 확산되면서 연성능력이 크게 증가한 것으로 사료된다.

/Resources/kci/JKCI.2013.25.4.419/images/PICE665.gif

Fig. 14 Comparison of cumulative energy dissipation capacity for each specimen at various displacement ductilities

/Resources/kci/JKCI.2013.25.4.419/images/PICE6F2.gif

Fig. 15 Elongation of beam hinging region for each specimen

4.7 보의 소성힌지 영역의 신장

보의 소성힌지 영역의 변형을 측정하기 위하여 각 실험체에 2개의 변위계(LVDT)를 설치하였다. 각 실험체의 기둥면에서 보의 유효높이의 범위에 걸친 보의 신장(elongation)을 측정하였다. 반복 주기하중이 작용하는 동안 보의 상부근 및 하부근의 교대로 인장을 받게 된다. 변위연성별 각 실험체의 보의 소성힌지 영역의 신장을 구하여 Fig. 15에 나타내었다. 변위연성별 보의 소성힌지 영역의 신장을 파악할 수 있으며, 이는 보-기둥 접합부 및 보의 소성힌지 영역의 파괴형태와 밀접한 관계가 있으므로 각 실험체의 파괴형태를 더 잘 고찰할 수 있다.

4.8 철근의 변형률

실험체가 받는 최대변위는 매 싸이클마다 증대하기 때문에 보 주근의 변형은 철근의 슬립이 일어나기 전까지는 매 싸이클마다 증가하였다. 그러나 연속적인 두 싸이클의 최대 변형이 동일하거나 감소하는 때가 나타났으며 이는 철근의 슬립이 발생한 것으로 판단되었다. 실험을 통하여 Fig. 16, 17과 같이 각 싸이클에 따른 보 및 기둥 주근의 변형도 관계를 구하였으며, 표준실험체 BCJC의 경우 보-기둥 접합면의 보 주근이 항복 이후에도 변형률이 일정하게 유지되었다. 실험체 BCJNS의 경우 항복 이후에 급격히 증가되었으며, 실험체 BCJNSP시리즈의 경우 보 주근이 항복 이후에도 변형률이 일정하게 증가되었고, 표준실험체 BCJC처럼 전단보강근이 없음에도 불구하고 고인성섬유 복합모르타르의 보강으로 접합부의 연성과 부착 및 정착성능이 개선되었음을 알 수 있다.

/Resources/kci/JKCI.2013.25.4.419/images/PICE761.gif

Fig. 16 Maximum strain during each cycle of loading in strain intensity of beam

/Resources/kci/JKCI.2013.25.4.419/images/PICF076.gif

Fig. 17 Maximum strain during each cycle of loading in stain intensity of column

5. 결    론

이 연구에서는 고강도 철근콘크리트 외부 보-기둥 접합부 영역의 손상을 최소화하고 시공성과 내진성능을 향상시키고자 고인성섬유 복합모르타르를 활용한 철근콘크리트 외부 보-기둥 접합부의 실험을 수행하여 내진성능을 평가하였으며, 이 연구의 실험 결과를 근거로 다음과 같은 결론을 얻었다.

1)고강도 철근콘크리트 보-기둥 접합부영역 1.5d에 스터럽 및 띠철근을 제거한 영역에 고인성섬유 복합모르타르로 대체한 실험체 BCJNSP 시리즈의 경우 표준실험체 BCJC와 비슷한 이력거동을 나타내었고, 실험체 BCJNS에 비하여 안정적인 이력거동과 충분한 내력을 확보하였다.

2)고강도 철근콘크리트 보-기둥 접합부영역 1.5d에 스터럽 및 띠철근을 제거한 영역에 고인성섬유 복합모르타르로 대체한 실험체 BCJNSP 시리즈의 경우 실험체 BCJNS에 비하여 최대내력이 1.09∼2.03배 증대되었고, 표준실험체 BCJC와 비슷한 0.92∼0.96배의 최대내력을 나타내었다. 또한, 표준실험체 BCJC에 비하여 초기강성이 20% 높게 나타났다.

3)고강도 철근콘크리트 보-기둥 접합부영역 1.5d에 스터럽 및 띠철근을 제거한 영역에 고인성섬유 복합모르타르로 대체한 실험체 BCJNSP 시리즈는 보의 내측과 패널존에 미세한 균열이 집중되는 안정적인 파괴형태를 나타내었다.

4)고강도 철근콘크리트 보-기둥 접합부영역 1.5d에 스터럽 및 띠철근을 제거한 영역에 고인성섬유 복합모르타르로 대체한 실험체 BCJNSP1.5는 표준실험체 BCJC에 비하여 에너지 소산능력이 1.62배 증가하였다.

5)각 실험체의 연성능력을 비교한 결과 보-기둥 접합부의 위험단면영역을 고인성섬유 복합모르타르로 보강한 실험체 BCJNSP 시리즈의 경우 1.12~1.24배 증가하였으며, BCJNS에 비하여 2.27~2.53배 증가하였다.

6)실험체 BCJNSP시리즈는 표준실험체 BCJC와 유사한 이력거동과 내력, 에너지소산능력 등의 효과를 나타냄으로써 전단보강근의 부분적인 대체도 가능할 것으로 판단된다.

Acknowledgements

이 연구는 2012년도 한국연구재단의 연구비 지원에 의한 결과의 일부이다(과제번호:2012-007346).

References

1 
1. Ha, G. J., Kim, J. K., and Chung, L., “Response of Reinforced High-Strength Concrete Beam-Column Joints Under Load Reversals,” Magazine of Concrete Research, Vol. 44, No. 160, 1992, pp. 175-184.DOI
2 
2. Ha, G. J., Yang, J. K., Kim, J. K., and Chung, L., “Behavior of Reinforced High-strength Concrete Beam- Column Joint Under Load Reversals,” Journal of the Architectural Institute of Korea, Vol. 8, No. 9, 1992, pp. 231-240.Google Search
3 
3. Ha, G. J., Kim, J. K., and Chung, L., “Improvement of Earthquake-Resistant Performance of R/C Beam-Column Joint Constructed with High-Strength Concrete Subjected to Cyclic Loading,” Journal of the Korea Concrete Institute, Vol. 4, No. 1, 1992, pp. 135-145.Google Search
4 
4. Ha, G. J., Shin, J. H., and Kim, Y. Y., “Evaluation of Structural Performance for the Shear Wall using High Ductile Fiber Composite Mortar,” Journal of the Regional Association of Architectural Institute of Korea, Vol. 7, No. 1, 2005, pp. 39-45.Google Search
5 
5. Ha, G. J., “Evaluation of Structural Performance of Reinforced Concrete Beam Using New Fiber Composite Material and Ground Granulated Blast Furnace Slag,” Journal of the Regional Association of Architectural Institute of Korea, Vol. 12, No. 3, 2010,  pp. 261-268.Google Search
6 
6. Ha, G. J., Hong, K. H., and Lee, D. G., “Improvement and Evaluation of Shear Performance of R/C Beam using High Ductile Fiber-Reinforced Mortar with Ground Granulated Blast Furnace Slag,” Journal of the Regional Association of Architectural Institute of Korea, Vol. 13, No. 1, 2011, pp. 237-244.Google Search
7 
7. Kim, Y. Y., Kim, J. S., Ha, G. J., and Kim, J. K., “Development of an ECC (Engineered Cementitious Composite) Designed with Ground Granulated Blast Furnace Slag,” Journal of the Korea Concrete Institute, Vol. 18, No. 1, 2006, pp. 21-28.DOI
8 
8. Kim, Y. Y., Ha, G. J., and Shin, J. H., “Design of ECC (Engineered Cementitious Composite) Matrix Compositions Based on Micromechanics and Steady-State Cracking Theory,” Journal of the Architectural Institute of Korea, Vol. 23, No. 5, 2007, pp. 11-18.Google Search
9 
9. Kim, Y. Y., Cho, C. G., Ha, G. J., and Bae, S. H., “Strategies for High Performance Fiber Reinforced Cementitious Composites Development,” Magazine of the Korea Concrete Institute, Vol. 18, No. 3, 2006, pp. 82-86.Google Search
10 
10. Kim, J. J. H., Yun, H. D., and Jeon, E., “Material Design, Characteristics and Application of Engineered Cementitious Composites,” Magazine of the Korea Concrete Institute, Vol. 18, No. 1, 2006, pp. 28-35.Google Search
11 
11. Yang, I. S., Yun, H. D., Kim, S. W., Park, W. S., Han, B. Ch., and Moon, Y. J., “Hysteretic Characteristics of Seismic Devices using High Performance Fiber Reinforced Cement Composites,” Journal of the Architectural Institute of Korea, Vol. 21, No. 1, 2005, pp. 51-58.Google Search
12 
12. Choi, K. B., Chung, L., and Ha, G. J., “Detailed Design of Multi-Story Reinforced Concrete Building Under Lateral Load,” Magazine of the Korea Concrete Institute, Vol. 8, No. 6, 1996, pp. 39-51.Google Search
13 
13. Li, V. C., Wang, Y., and Backer, S., “A Micromechanical Model of Tension-Softening and Bridging Toughening of Short Random Fiver Reinforced Brittle Matrix Composites,” Journal of the Mechanics and Physics of Solids, Vol. 39, Issue, 5, 1991, pp. 607-625.DOI
14 
14. Li, V. C. and Wu, H. C., “Condition for Pseudo Strain- Hardening in Fiber Reinforced Brittle Matrix Composites,” Journal of Applied Mechanics Review, Vol. 45, Issue 8, 1992, pp. 390-398.DOI
15 
15. Marshall, D. B. and Cox, B. N., “A J-Integral Method for Calculating Steady-State Matrix Cracking Stresses in Composite,” Mechanics of Materials, Vol. 7, Issue 2, 1998, pp. 127-133.DOI